- Woonoppervlakte
- Circa 121 m²
- Perceeloppervlakte
- Circa 187 m²
- Bouwjaar
- Gebouwd in 1968
- Aantal kamers
- 5 kamers (4 slaapkamers)
Parkstad Makelaardij presenteert met trots deze instapklare hoekwoning, gelegen in de gewilde, kindvriendelijke buurt Bankras/Kostverloren. De woning combineert comfort, duurzaamheid en ruimte op een rustige locatie met uitstekende voorzieningen binnen handbereik.
Indeling
Begane grond
Entree met hal, meterkast (vernieuwd in 2019), trapkast en toilet. De ruime woonkamer beschikt over een erker en geniet van lichtinval vanuit drie zijden. Via de schuifpui is er directe toegang tot de zonnige tuin, uitgerust met zonnescherm en eigen waterpunt. De moderne open keuken (2019) is compleet met inductiekookplaat, vaatwasser, koelkast, vriezer, oven en magnetron.
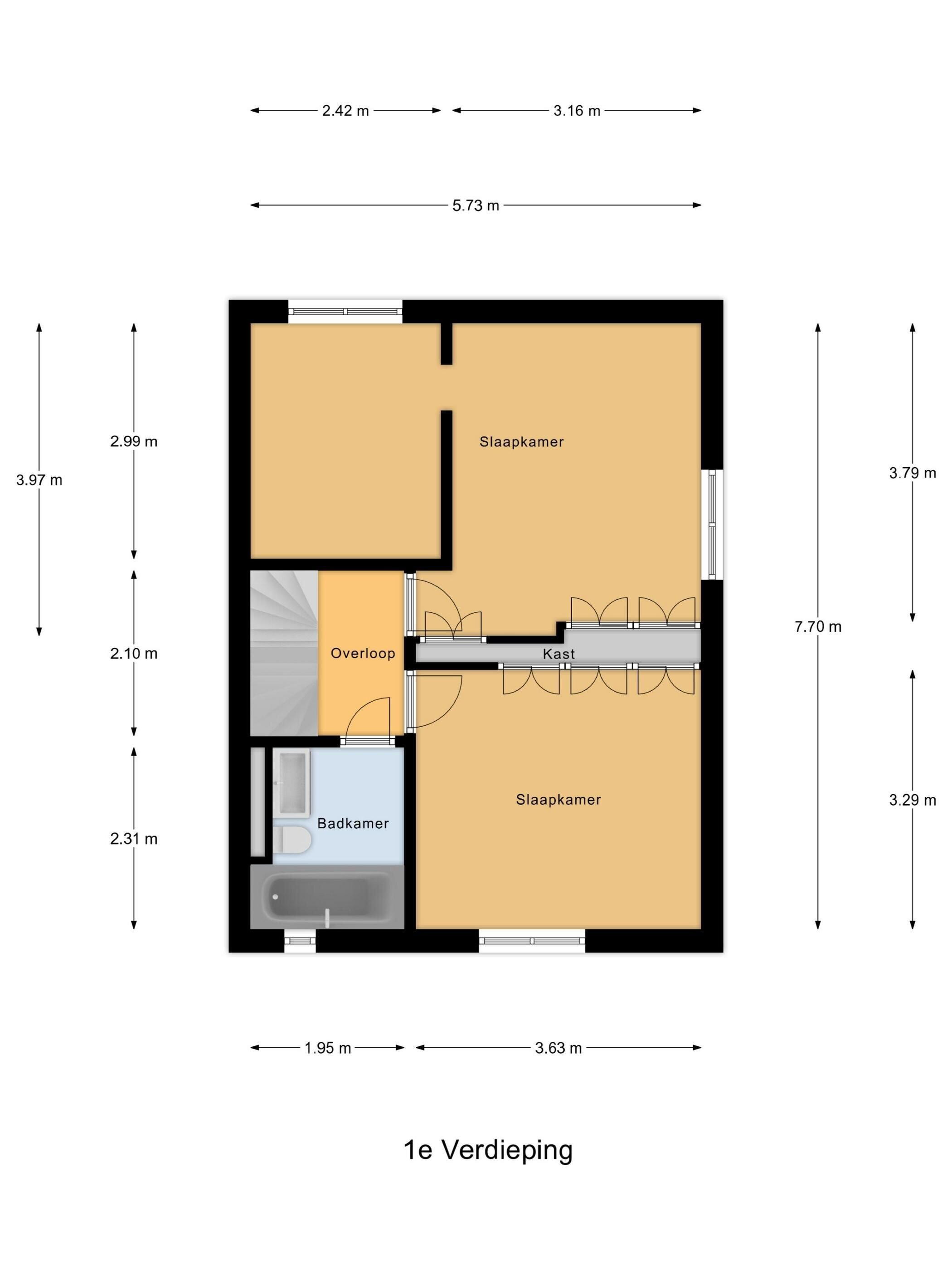
Eerste verdieping
Twee slaapkamers, waarvan één met vaste kast. De tweede slaapkamer heeft een inloopkast en extra vaste kast—de inloopkast kan eenvoudig weer worden omgezet in een vierde slaapkamer. De badkamer is voorzien van ligbad, wastafel, toilet, vloerverwarming en mechanische ventilatie met sensor.
Tweede verdieping
Royale zolderkamer met geïsoleerd dak, bergruimte aan beide zijden en twee dakkapellen. Een vaste boekenkast blijft achter. Op de overloop is een afgesloten ruimte met wasmachine-aansluiting, hybride CV-installatie (Remeha Avanta Ace 35C hybride R32) en omvormer van de zonnepanelen.
Voorzieningen en installaties
- Kunststof kozijnen met HR++ glas
- Hybride CV-installatie met warmtepomp 2025
- 10 zonnepanelen 2022
- Vloerverwarming in de hele woning, met zoneverwarming per verdieping
- Twee kruipruimtes
- Energielabel A+
- Gebruikoppervlakte wonen: 121 m² | Externe bergruimte: 26 m² | Bruto inhoud: 413 m³
Buurt & Voorzieningen
- Supermarkt op loopafstand: ‘Kwaliteit’ op ca. 257 m en Vomar (300 m)
- Basisschool nabij: School of Understanding op ca. 242 m
- Voortgezet onderwijs dichtbij: Nova college, Scholengemeenschap Panta Rhei op ca. 265 m; Huygens College op ca. 2,8 km
- Openbaar vervoer en bereikbaarheid: 5 & 25 en diverse buslijnen (zoals Zuidtangent) op loopafstand; snel bereikbaar naar Amsterdam, Schiphol en Zuidas EHR
- Winkels & Stadshart: Stadshart Amstelveen op korte fietsafstand; daar vind je winkels, horeca, bioscoop, bibliotheek en meer
- Groen & recreatie: Direct bij de woning diverse groenpartijen. Fietsafstand naar prachtige wandel- en fietsroutes in de Middelpolder, langs de Amstel of het Amsterdamse Bos
Kenmerken
Energiezuinig (A+ label), volledig vernieuwde installaties, vloerverwarming, zonnige woonruimte met erker én schuifpui, flexibele indeling mogelijk (4 slaapkamers), zeer centrale ligging nabij voorzieningen, scholen en natuur. Perfect voor wie comfort, duurzaamheid en locatie zoekt.
De waarborgsom/bankgarantie is 10% van de koopsom. De koper dient deze binnen 2 weken nadat het financieringsvoorbehoud is verlopen bij de desbetreffende notaris te deponeren.
Ter bescherming van de belangen van zowel koper als verkoper wordt uitdrukkelijk gesteld dat een koopovereenkomst met betrekking tot deze onroerende zaak eerst tot stand komt nadat koper en verkoper de koopovereenkomst hebben getekend (schriftelijkheidsvereiste).
Alle door ons kantoor verstrekte informatie omtrent onroerende zaken moet beschouwd worden als een uitnodiging om in onderhandeling te treden en is geheel vrijblijvend. Aangegeven maten zijn bij benadering. Aan deze informatie kunnen geen rechten worden ontleend.
Een eventueel bijgevoegde plattegrond dient uitsluitend als globale indicatie/visualisatie. Hieraan kunnen geen rechten worden ontleend. Lees de volledige omschrijving
Overdracht
- Vraagprijs
- € 819.000 k.k.
- Status
- Verkocht onder voorbehoud
- Aanvaarding
- In overleg
Bouw
- Object type
- Eengezinswoning, hoekwoning
- Soort bouw
- Bestaande bouw
- Bouwjaar
- 1968
- Soort dak
- Zadeldak bedekt met pannen
Oppervlakte en inhoud
- Woonoppervlakte
- 121 m²
- Perceeloppervlakte
- 187 m²
- Inhoud
- 413 m³
- Externe bergruimte
- 26 m²
Indeling
- Aantal kamers
- 5 kamers (4 slaapkamers)
- Aantal badkamers
- 1 badkamer en 1 apart toilet
- Badkamervoorzieningen
- Ligbad, vloerverwarming, wastafel, en wastafelmeubel
- Aantal woonlagen
- 3 woonlagen en een zolder
- Voorzieningen
- CCTV, dakraam, glasvezelkabel, mechanische ventilatie, schuifpui, TV kabel, en zonnepanelen
Energie
- Energielabel
- A
- Energielabel registratie
- 13-08-2025
- Isolatie
- Volledig geïsoleerd
- Verwarming
- Cv-ketel, gehele vloerverwarming en warmtepomp
- Warm water
- Cv-ketel
- Cv ketel
- Emeha avanta ace 35c hybride r32 (gas gestookt combiketel uit 2025, eigendom)
Buitenruimte
- Ligging
- Aan park, aan rustige weg, aan water, in woonwijk en vrij uitzicht
- Tuin
- Achtertuin en voortuin
- Afmetingen achtertuin
- 50 m² (10,00 meter diep en 5,00 meter breed)
Bergruimte
- Schuur / berging
- Vrijstaande stenen berging
- Voorzieningen
- Elektra
Garage
- Soort garage
- Aangebouwde stenen garage en parkeerplaats
- Capaciteit
- 1 auto
- Voorzieningen
- Elektra
Parkeergelegenheid
- Soort parkeergelegenheid
- Betaald parkeren, op eigen terrein, openbaar parkeren en parkeervergunningen
Energieverbruik in Amstelveen
Energielabel deze woning
Energielabel A
Publicatie energielabel: 13-08-2025
Stroomverbruik per jaar
(Gemiddelde hoekwoning in Amstelveen)
Gasverbruik per jaar
(Gemiddelde hoekwoning in Amstelveen)
* Cijfers zijn afkomstig van het CBS en bedoeld als indicatie en kunnen verschillen voor deze woning
Indicatie hypotheeklasten
Eigen inleg:
Spaargeld / overwaarde
Rente:
Laagste 10-jaars rente
Laagste 10-jaars rente
2,75% - Centraal Beheer Groen... - NHG
3,04% - Argenta Groen Hypothee... - 80%
Laagste 20-jaars rente
3,18% - Argenta Groen Hypothee... - NHG
3,39% - Argenta Groen Hypothee... - 80%
Laagste 30-jaars rente
3,35% - Argenta Groen Hypothee... - NHG
3,56% - Argenta Groen Hypothee... - 80%
Hypotheek:
Bruto maandlasten: € 0 p/m
Netto maandlasten: € 0 p/m
Hoe berekenen we dit?
Het rentepercentage is gebaseerd op de laagste 10 jaars vaste rente voor één hypotheekdeel. De vermelde rente (3.04% zonder NHG) is gecontroleerd op 12-11-2025. Deze berekening is gebaseerd op een annuïteitenhypotheek die volledig wordt afgelost, waarbij de maandlasten gedurende de gehele looptijd gelijk blijven. De werkelijke rente en netto maandlasten kunnen variëren, afhankelijk van uw persoonlijke situatie en de hypotheekverstrekker. Raadpleeg een financieel adviseur voor een nauwkeurige berekening en advies. Aan deze berekening kunnen geen rechten worden ontleend; het dient enkel als indicatie.
Documentatie
Kadastrale kaart
Leefomgeving
BAG uittreksel
Plattegronden PDF
Brochure
Bezichtiging
Bod uitbrengen
Waardebepaling
Zoekopdracht
Alles downloaden
Zonnegrenzen bekijken
Op de kaart
Inwoners in Amstelveen
Cijfers voor postcodegebied 1183
- Totaal aantal inwoners
- 13785 inwoners
- Mannen
- 47%
- Vrouwen
- 53%
Inwoners in Amstelveen
Cijfers voor postcodegebied 1183
- tot 15 jaar
- 12%
- 15 tot 25 jaar
- 23%
- 25 tot 35 jaar
- 27%
- 45 tot 65 jaar
- 20%
- 65 en ouder
- 17%
Huishoudens in Amstelveen
Cijfers voor postcodegebied 1183
- Eenpersoons zonder kinderen
- 63%
- Meerpersoons zonder kinderen
- 17%
- Huishoudens zonder kinderen
- 80%
Huishoudens in Amstelveen
Cijfers voor postcodegebied 1183
- Huishoudens met één kind
- 6%
- Huishoudens met meerdere kinderen
- 14%
- Huishoudens met kinderen
- 20%
Woningen in Amstelveen
Cijfers voor postcodegebied 1183
- Woningen voor 1945
- 1%
- Woningen tussen 1945 en 1965
- 4%
- Woningen tussen 1965 en 1975
- 68%
- Woningen tussen 1975 en 1985
- 1%
- Woningen tussen 1985 en 1995
- 3%
Woningen in Amstelveen
Cijfers voor postcodegebied 1183
- Woningen tussen 1995 en 2005
- 5%
- Woningen tussen 2005 en 2015
- 14%
- Woningen na 2015
- 3%
- Huurwoningen
- 60%
- Koopwoningen
- 40%
Overige in Amstelveen
Cijfers voor postcodegebied 1183
- Gemiddelde WOZ waarde
- € 376.000,-
- Personen onder de 65 met uitkering
- 5%
Overige in Amstelveen
Cijfers voor postcodegebied 1183
- Adressen per km²
- 2736
- Stedelijkheid (schaal 1 op 5)
- 100%
Korte feiten over Amstelveen
Amstelveen is een plaats en gemeente in de Nederlandse provincie Noord-Holland. De bebouwde kom grenst in het noorden aan de stad Amsterdam en ligt niet ver van Schiphol. De gemeente telt 95.007 inwoners en heeft een totale oppervlakte van 44,08 km², waarvan 41,13 km² land en 2,95 km² water (1 januari 2024, Bron: CBS).
Parkstad Makelaardij
Indien u vragen heeft of u wilt een bezichtiging inplannen, dan kunt u gebruik maken van het formulier hiernaast. Er zal daarna op korte termijn contact met u worden opgenomen.
Contact opnemen
Parkstad Makelaardij
Twijfelt u of het nu het juiste moment is om uw woning in Parkstad te verkopen? Dat is begrijpelijk zeker als u nog geen nieuw huis heeft gevonden, is die stap niet eenvoudig.
Toch denkt u er misschien aan om net als buren, vrienden of collega’s een volgende stap te zetten. Misschien speelt ook mee dat de markt op dit moment gunstig is, en u juist nu een goede prijs voor uw woning kunt krijgen—een kans die zich de komende jaren mogelijk niet meer voordoet.
Laat daarom vrijblijvend en kosteloos uw woningwaarde bepalen door Parkstad Makelaardij. Zo weet u precies waar u aan toe bent.
Nieuwste reviews
-
Nautiluserf 28
Heel erg tevreden goed en snel geholpen. Huis was heel snel verkocht binnen een 1,5 week hebben we een goed bod gekregen.Said was goed en sn...
-
Annastraat 34
Soepel contact. Reageert snel en is duidelijk. Hele fijne man om mee te werken. Saïd bedankt!
-
Aletta Jacobsstraat 34
Makkelijke communicatie en super vriendelijk. Reageert bij vragen heel snel.Is eenmans makelaar, waardoor al het werk door hem wordt gedaan....